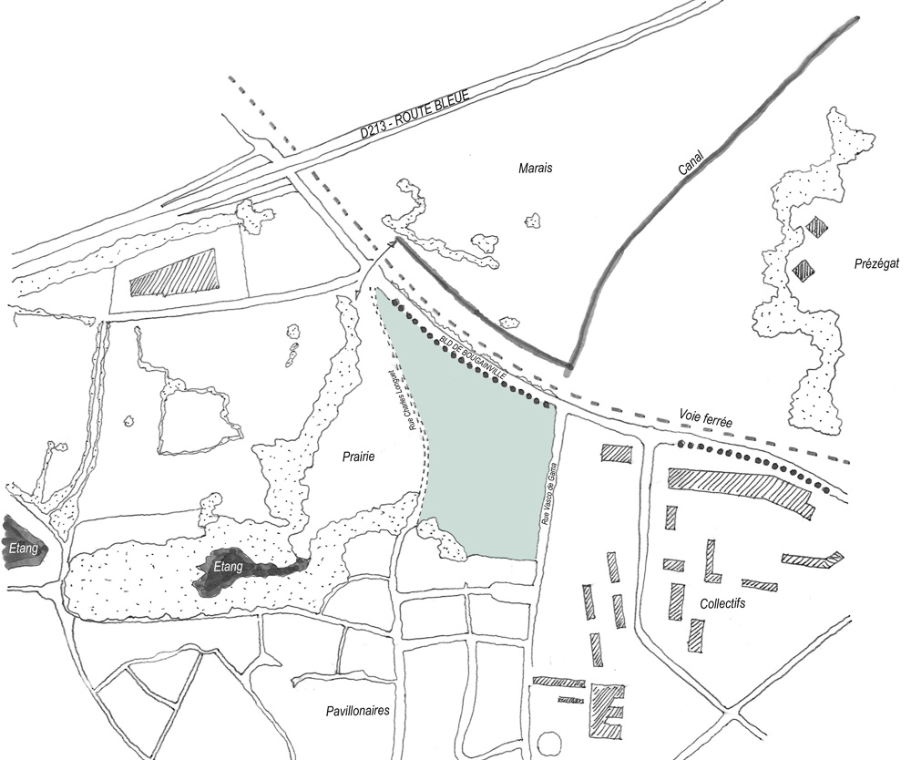
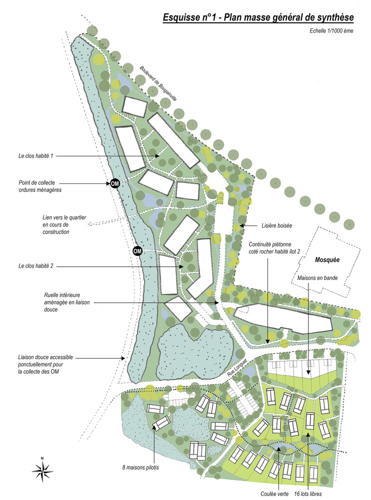
Quartier Vasco de Gama à St NazaireGianni-Codron2025-09-19T15:22:30+02:00 Nouveau quartier d’habitation à Saint-Nazaire (44)Maîtrise d’ouvrage : CISN Maîtrise d’œuvre : atelier Horizons paysagiste JBA architecte mandataire Atelier Ronan Prineau architecte associé Concours Lauréat Étude de faisabilité : 2023